物件206250| 4階 5LDK|八王子市上柚木
- 礼金ゼロ
▲クリックすると全5件の画像が拡大できます。
| 所在地 | 東京都八王子市上柚木2-63 | ||
|---|---|---|---|
| 交通 |
京王相模原線
『
南大沢駅
』
徒歩18分
京王相模原線 『 南大沢駅 』 駅までバスで8分 バス停『三徳プラザ』 徒歩2分 京王線 『 北野駅 』 駅までバスで23分 バス停『三徳プラザ』 徒歩4分 |
||
| 月額家賃 | 172,800円 | ||
| 敷金 | 2ヶ月 | 礼金 | 0ヶ月 |
| 更新料 | 0ヶ月 | 保証金 | - |
| フリーレント | - | 共益費 | 4,600円 |
| 仲介料 | 0ヶ月 | 総戸数 | 426 戸 |
| 階数 | 4階 | 管理開始 | 17年~26年 |
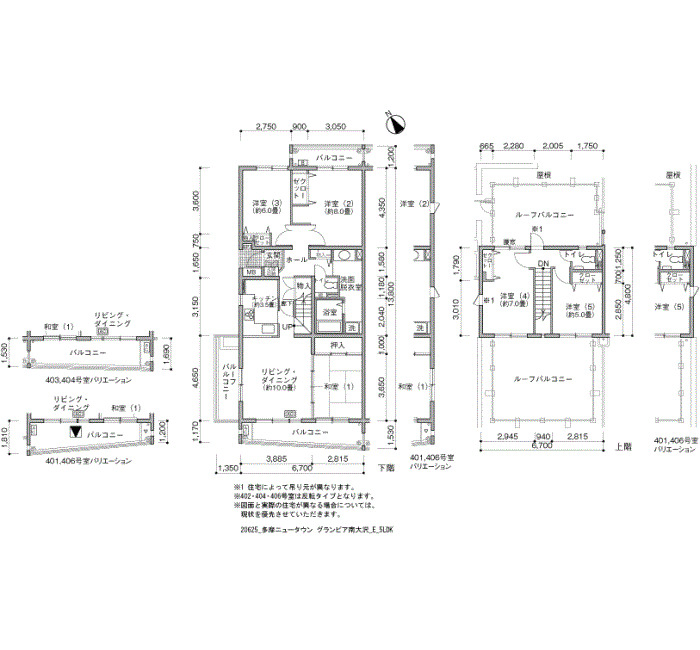
| 間取り | 5LDK | 床面積 | 122㎡ |
| 駐車場 | 機械 空き台数:12台 料金:8,580円近隣駐車場のご案内・多摩ニュータウン シティハイツ南大沢・多摩ニュータウン ベルコリーヌ南大沢・多摩ニュータウン 南大沢絹の道一番街 | ||
| 建物の制度・特徴・設備 |
|---|
|
|
| 部屋の制度・特徴・設備 |
|
|
物件206250| 4階 5LDK|八王子市上柚木のMAP
-
ネットでお問い合わせ
-
電話でお問い合わせ
0120-544-201受付 9:30~18:00水・日・祝日定休
